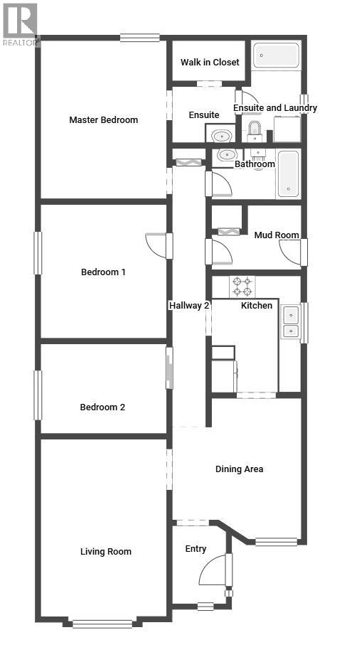
Charming 3-bedroom, 2-bathroom in East Hill, offering approximately 1,300 sq. ft. of designed living space. The open-concept layout features a vaulted ceiling in the spacious living room. The kitchen is equipped with high-quality cabinetry. The large master bedroom offers a walk-in closet and an en-suite bathroom. Two additional generously sized bedrooms provide ample space, including a versatile third bedroom that can serve as a den. An additional 3-piece bathroom adds convenience for family and guests. Enjoy the benefits of an attached full-sized carport and extra driveway space for two vehicles. The property boasts a fully fenced yard, with the fence being only a few years old. Some mature greenery features, ensuring privacy and a perfect outdoor setting. Conveniently located, 9 min walk to Vernon Secondary School, 7 min drive to Kal Beach and 3 min drive to Polson Park & Plaza, this home offers both comfort and accessibility. (id:4069)
Address
1605 15 Avenue
List Price
$489,800
Property Type
Single Family
Type of Dwelling
Single Family
Style of Home
Ranch
Transaction Type
Sale
Area
British Columbia
Sub-Area
Vernon
Bedrooms
3
Bathrooms
2
Floor Area
1,300 Sq. Ft.
Lot Size
0.14 Sq. Ft.
Year Built
1996
MLS® Number
10356839
Listing Brokerage
Royal LePage Downtown Realty
Postal Code
V1T9R4
Features
Level lot































